EXPERTISE. OPTIMUM. KNOWLEDGE. EXPECTATIONS.
A home-grown architectural design company providing a personalised and friendly service.
One important part of our job is to use a variety of drawing styles at different stages of the project, to convey our design ideas to the client, local authority and contractors / builders.
We use scheme design drawings and sketches to present our initial concept and thoughts to clients. Keeping these drawings simple, we find, helps our clients to understand and focus on their overall brief without being distracted with too much detail early on.
Once a scheme has been agreed, the drawings are developed into detailed planning drawings which give enough additional information, annotation and if necessary colour to obtain Detailed Planning Approval from the local authorities planning department.
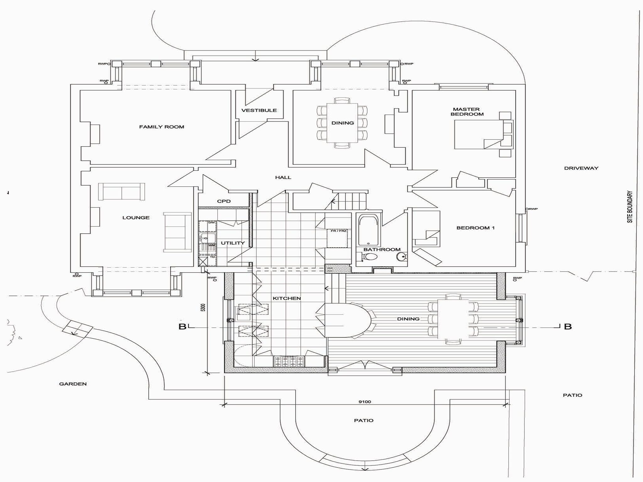
The next stage is to take our Scheme and / or Planning drawings (depending if planning is required for the project) and develop them into a full set of detailed design drawings which focus on the construction and technical aspects of the design, including electrical, lighting and heating layouts. These drawings will enable our client to apply for and obtain Building Warrant Approval from the local authorities Building Control department.
We also pride ourselves that our detailed design drawings contain enough information that they allow contractors to build from them without the need of further construction drawings being required for domestic projects. In saying this we can also produce some additional construction / production details as required for bigger commercial / industrial jobs.
WHAT IS ARCHITECTURE?
Painting is art to look at, sculpture is art you can walk around, and architecture is art you can walk through.
by – Dan Rice
RECENT PROJECTS
Grid Design is an award winning company with a reputation for consistent innovation at the highest level of design.
Communication was good throughout the project both when we contacted you and you contacted us. The drawings produced for Scheme Design, Planning and Building Warrant were excellent. The project was a long and complicated process and although the builder had his own issues, we would not have got anywhere near as good an outcome if we didn’t have you overseeing the build.
he general conceptual part of the project required our general thinking being worked into a detailed project, which with the support given by you, resulted in our ideal solution to our new Kitchen extension and Family living space being found. We were very satisfied with the support given during this stage of the project. We found the drawings etc. comprehensive and detailed which assisted in our understanding of the final scheme. During the submissions as part of the Local Authority applications, we had to re-submit information to Building Control to include some minor changes. You handled this smoothly and to our satisfaction.
We were extremely happy with the service provided by you / Grid Design, it was excellent throughout. At every stage of the project; from the design process, dealing with the Council permissions and finally the assistance with the works on site we found you to be approachable and consistently helpful. We are very pleased with the end result of our design and would not hesitate in recommending, or using Grid Design again in the future.
Initially we weren’t entirely sure what we were looking for but you guided us through several options with regards to layout and size. The final design was different from what we envisaged but specifics like the pitched roof, velux windows, bi fold doors and use of the glass balustrade made the final design stunning. This new room is now used most of the time for watching TV / relaxing and the bi fold doors allow light to spread throughout the kitchen / dining area and negate the need for a large amount of artificial lights in the summer. Kitchen design is excellent as we had no real idea what we were looking for and you were instrumental in making the kitchen deliver beyond our expectations. Throughout the whole process from initial meeting to builders being on site through to completion and dealing with any snagging requests your attention to detail and assistance was excellent.
Just to confirm that I am delighted with the service received from you on our extension project.This is the first time that we have undertaken a project like this and the guidance and support you have provided has been terrific. Drawings received have been extremely well detailed, in fact the builders who quoted for our work praised them highly for the information that they contained. All appointments have been attended on time and arranged to suit our circumstances. I have always been able to contact you to discuss the issues we have encountered along the way which has given me tremendous peace of mind.









